SRD Studio LLC - Design & Drafting

Home Design & Drafting Solutions

  • Home
  • About
  • Video
  • Service Agreement

Jul 24 2019

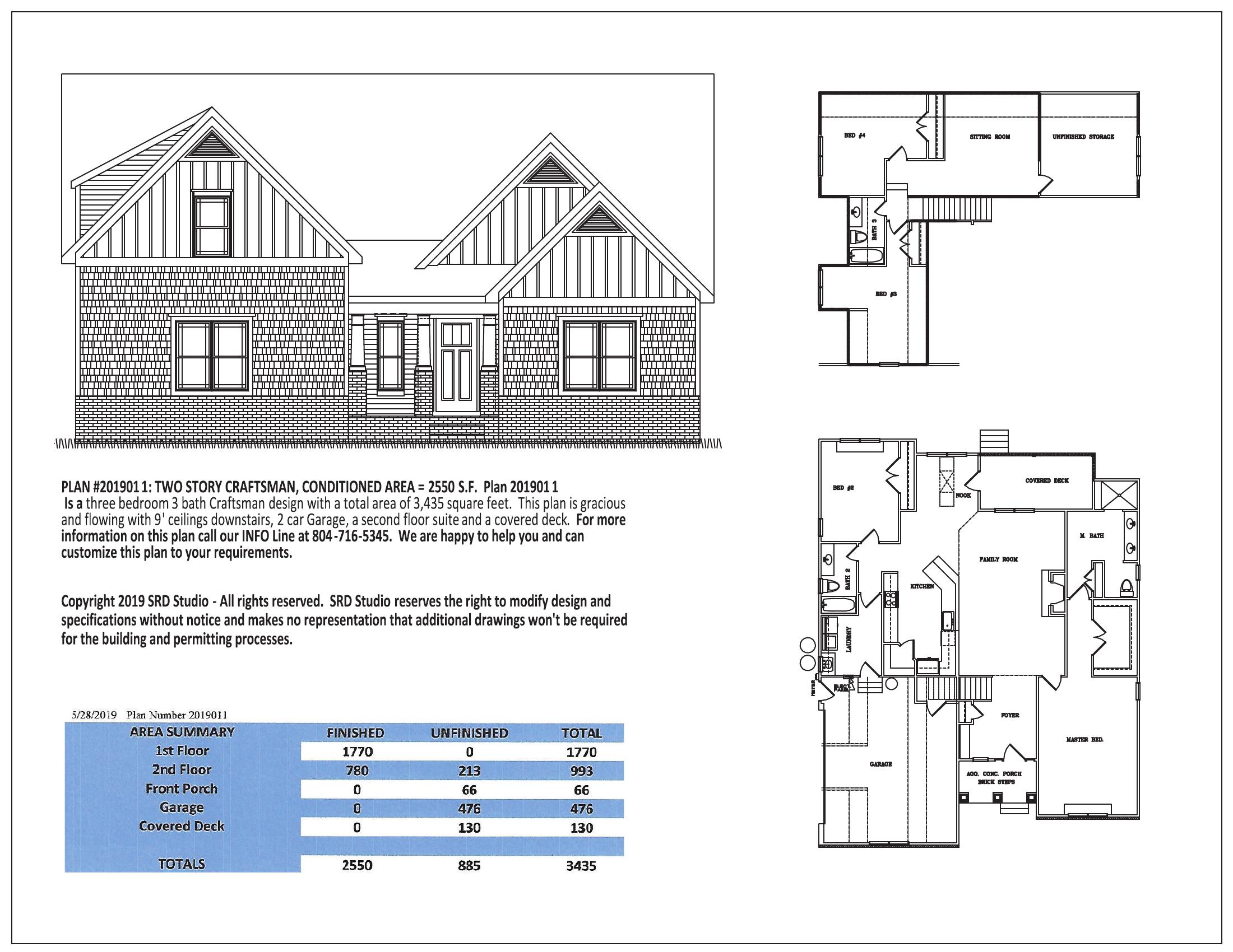
HOUSE PLAN NUMBER 2019011

Awaiting product image

$446.00

  • 3 Bedroom
  • 3 Bath
Category: Uncategorized

Related products

  • Placeholder

    HOUSE PLAN NUMBER 2019005

    • 4 Bedroom
    • 3 Bath
    • Beach House Design
    $358.00
    Buy Now
  • Placeholder

    HOUSE PLAN NUMBER 2019012

    • 4 Bedroom
    • 4 Bathroom
    $464.00
    Buy Now
  • Placeholder

    HOUSE PLAN NUMBER 2019008

    • 3 Bedroom
    • 2 Bath
    $428.00
    Buy Now
  • Placeholder

    HOUSE PLAN NUMBER 2019017

    • 2 Bedroom
    • 2 1/2 Bath
    $393.00
    Buy Now
  • Home
  • About
  • Video
  • Service Agreement

©2016 First Choice Estimating · All Rights Reserved · User Agreement · Website Design by: RC Creative Agency